Skip to main content Skip to page footer

Suchformular

Anmeldung wird geprüft

Im Medienhaus der Surseer Woche AG an der Unterstadt 22 vermieten wir ab 1. Juli 2026 oder nach Vereinbarung eine grosszügige 4.5-Zimmer-Dachwohnung im 3. OG und zwei 2.5-Zimmer-Wohnungen im 2. OG. Die Wohnungen sind bequem mit dem Lift erreichbar. Durch die Lage in der Altstadt werden keine Parkplätze vermietet.

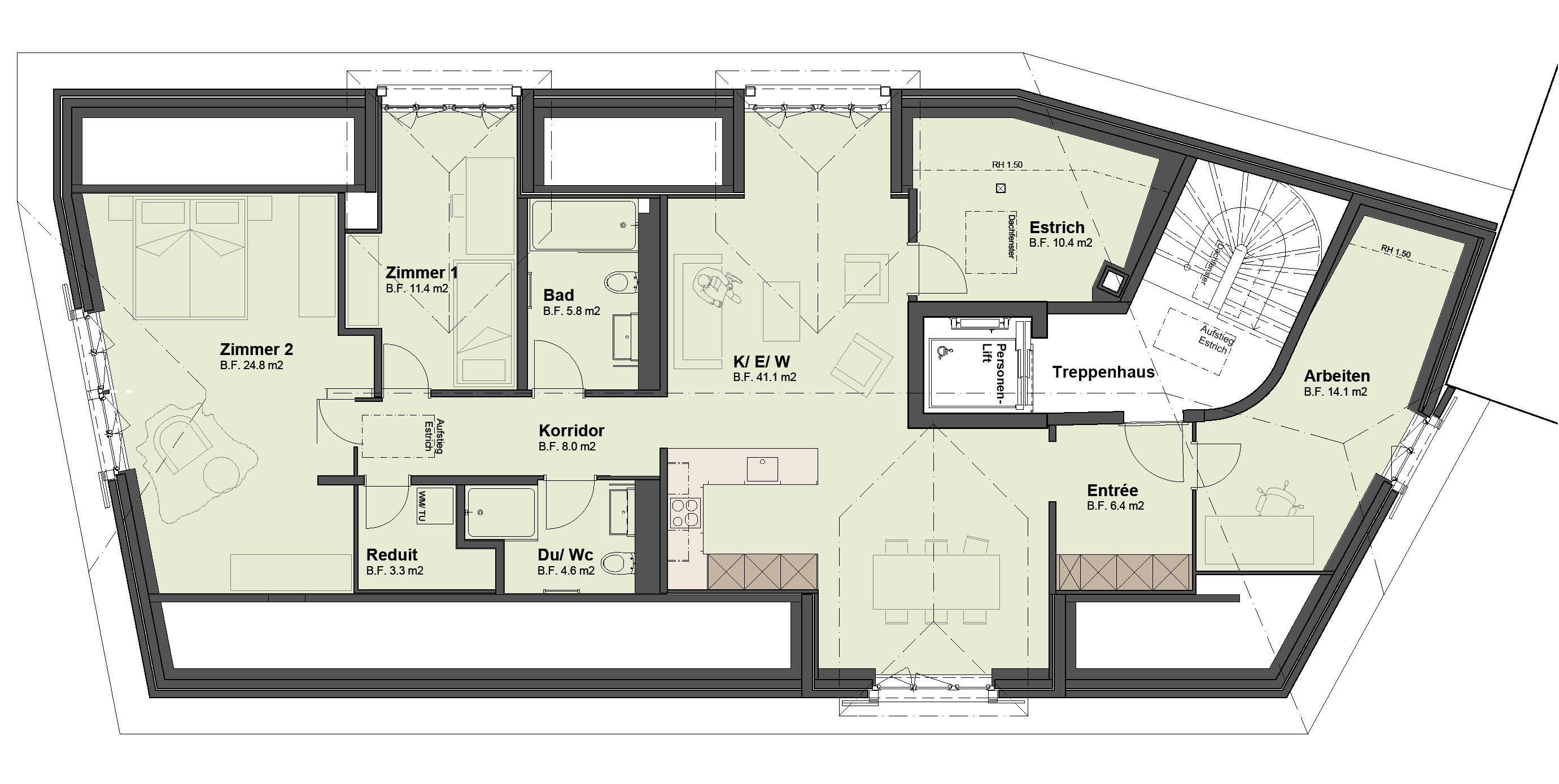
4.5-Zimmer-Dachwohnung (129 m2)

Die Wohnung befindet sich im 3. OG und ist bequem mit dem Lift erreichbar. Der offene Wohn-, Ess- und Küchenbereich bietet viel Platz zum Wohnen und Geniessen. Zwei Nasszellen (Bad sowie Dusche/WC) sorgen für hohen Wohnkomfort. Praktische Nebenräume wie ein Reduit und ein Estrich bieten wertvollen Stauraum. 

  • Die Wohnung wird ohne eigenen Parkplatz angeboten.

  • Es gibt einen Garten der mitbenutzt werden kann.

  • Grosszügiger Wohn-, Ess- und Küchenbereich

  • 3 grosszügige Zimmer 

  • Zwei Nasszellen (Bad und Dusche/WC)

  • Reduit und Estrich

  • Zentrale Lage in Sursee

  • Tolle Aussicht auf das Städtli Sursee und den Pilatus

  • Mietzins: CHF 2'900.– plus CHF 100.– NK

Diese Wohnung eignet sich ideal für Paare, Familien oder Personen mit Platzbedarf für Homeoffice, die zentrales Wohnen mit Komfort verbinden möchten. Für weitere Auskünfte oder einen Besichtigungstermin steht Ihnen Guido Eberhard gerne zur Verfügung. 041 921 85 21, admin@surseerwoche.ch

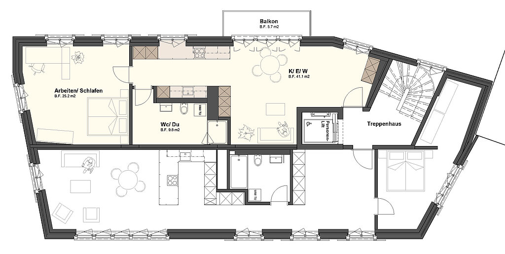
2.5-Zimmer-Wohnung mit Balkon (76 m2)

Die Wohnung befindet sich im 2. OG und ist bequem mit dem Lift erreichbar. Sie verfügt über einen offenen Wohn-, Ess- und Küchenbereich, der ein angenehmes und zeitgemässes Wohnen ermöglicht. Die durchdachten Grundrisse schaffen eine harmonische Verbindung von Wohnkomfort und Funktionalität. Die Wohnung bietet 76 m2 Wohnraum sowie einen Balkon mit Blickrichtung zur Sure, der zum Entspannen und Geniessen im Freien einlädt.

  • Die Wohnung wird ohne eigenen Parkplatz angeboten

  • Balkon mit Blick auf die Sure

  • Grosszügiger Wohn-, Ess- und Küchenbereich

  • Zentrale Lage in Sursee

  • Mietzins: CHF 1'550.– plus CHF 80.– NK

Für weitere Auskünfte oder einen Besichtigungstermin steht Ihnen Guido Eberhard gerne zur Verfügung. 041 921 85 21, admin@surseerwoche.ch

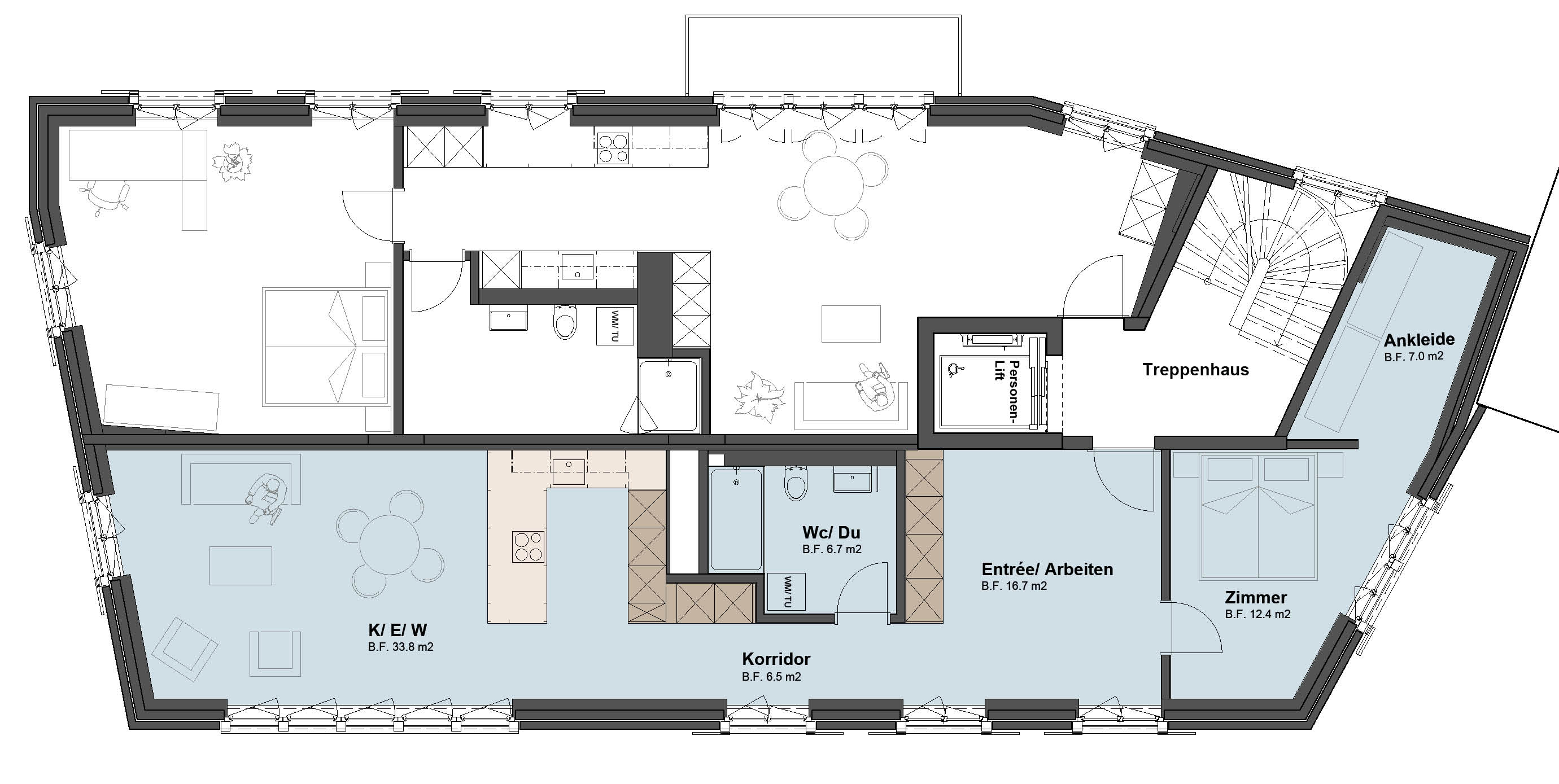
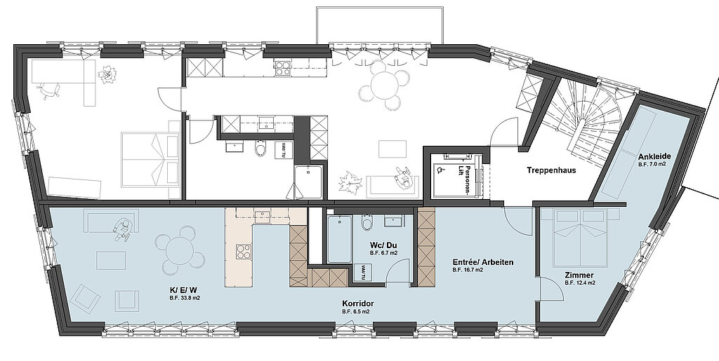
2.5-Zimmer-Wohnung (83 m2)

Die Wohnung befindet sich im 2. OG und ist bequem mit dem Lift erreichbar. Sie verfügt über einen offenen Wohn-, Ess- und Küchenbereich, der ein angenehmes und zeitgemässes Wohnen ermöglicht. Die durchdachten Grundrisse schaffen eine harmonische Verbindung von Wohnkomfort und Funktionalität. Die Wohnung bietet 83 m2 Wohnraum mit Blick aufs Städtli.

  • Die Wohnung wird ohne eigenen Parkplatz angeboten.

  • Es gibt einen Garten der mitbenutzt werden kann.

  • Grosszügiger Wohn-, Ess- und Küchenbereich

  • Zentrale Lage in Sursee

  • Tolle Aussicht auf das Städtli Sursee 

  • Mietzins: CHF 1'550.– plus CHF 80.– NK

Für weitere Auskünfte oder einen Besichtigungstermin steht Ihnen Guido Eberhard gerne zur Verfügung. 041 921 85 21, admin@surseerwoche.ch